Solución: Doblado de nervaduras en un solo golpe para chapa de acero de 1,2 mm utilizando la plegadora Amada.


El cliente se puso en contacto con nosotros con un desafío específico de doblado que involucraba unChapa de acero delgada con estructura acanalada, lo que requiere tanto eficiencia como consistencia dimensional.
Los principales requisitos del cliente incluían:
Material:Chapa de acero,1,2 mm de espesor
Máquina: Prensa plegadora Amada
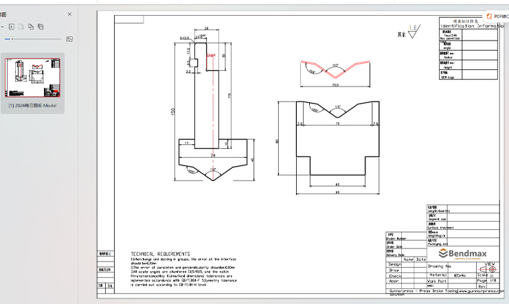
Abertura del troquel inferior: V = 60 mm
Método de conformado: Conformado en un solo golpe (doblado en un solo paso)
Característica de la pieza:Perfil multiángulo connervadura de refuerzo (estructura de rigidización)
Expectativas de calidad:
Ángulos de flexión estables
Conformado limpio sin distorsión
Forma de costilla uniforme
Alta repetibilidad para la producción por lotes
Debido a que la pieza de trabajo incluye Geometría de las nervaduras y múltiples ángulos de flexiónLos punzones rectos estándar no eran adecuados para lograr la forma requerida en una sola operación.
Tras revisar el dibujo, nuestro equipo de ingeniería identificó varios desafíos clave:
La presencia de un nervadura (elemento de refuerzo) aumenta la resistencia al conformado y cambia la forma en que fluye el material durante el doblado. Sin el soporte de herramientas adecuado:
Esto reduciría la eficiencia de la producción y aumentaría el tiempo del ciclo.
El cliente requería específicamente formación de un solo golpe, significado:
Esto requiere herramientas de perfil personalizado, no son punzones estándar.
Con acero de 1,2 mmUna selección incorrecta de herramientas puede provocar:
Un soporte adecuado por parte de los hombros de la matriz es esencial.
Tras la evaluación técnica, nuestros ingenieros recomendaron utilizar Herramientas personalizadas para doblado de nervaduras, diseñado específicamente para coincidir con el perfil que se muestra en el dibujo.

Configuración de herramientas recomendada:
Tipo de herramienta:Juego de punzón y matriz para doblar nervaduras
Compatibilidad de la máquina:Sistema Amada
Apertura del troquel inferior:V = 60 mm
Método de conformado:Formación de perfiles con un solo golpe
Apoyo material:Optimizado para el conformado de láminas delgadas.
Coincidencia de perfiles:Geometría personalizada que sigue la forma de la nervadura de la pieza.
Este diseño de utillaje permite que la nervadura y los ángulos se formen simultáneamente en una sola pasada de prensa.
La estructura de costillas que se muestra en el dibujo incluye:
Los punzones estándar no pueden controlar con precisión la deformación en este tipo de estructuras. Las herramientas de doblado de nervaduras proporcionan:
La punta del punzón, de diseño especial, soporta la geometría de las nervaduras y evita que se colapsen durante el conformado.
Con geometría de herramientas coincidente:
El utillaje personalizado para las nervaduras garantiza:
Tras implementar las herramientas de doblado de nervaduras recomendadas, el cliente logró con éxito:
Las piezas finales conformadas cumplieron con los requisitos dimensionales y funcionales del cliente.

Este caso demuestra que al doblar piezas con Estructuras de nervaduras o de refuerzoSeleccionar el perfil de herramienta correcto es fundamental.
Para componentes que requieren:
Herramientas personalizadas para el doblado de nervaduras Suele ser la solución más fiable.
leave a message
Scan to wechat :
Scan to whatsapp :